Et historisk bygg for minneverdige anledninger
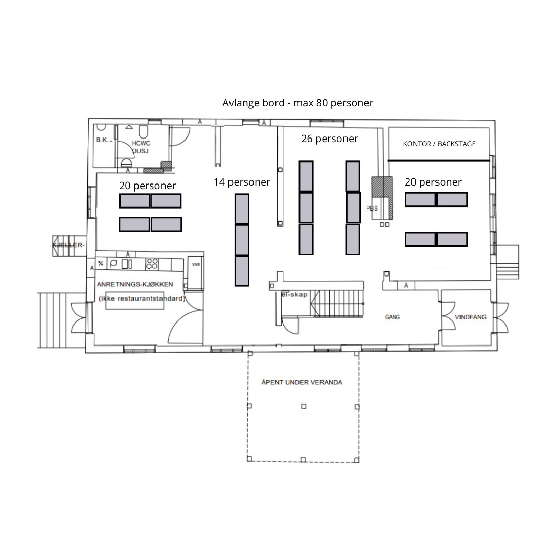
Villa Tullin har alt du trenger for en uforglemmelig opplevelse. I første etasje finner du stuen - med plass til maksimalt 80 personer ved sittende anledning på langbord.
I første etasje er det et romslig kjøkken med komfyr, to kokeplater, vask, oppvaskmaskin og kjøleskap/fryser. Det er også et romslig bad med vask, WC og dusj.
Fra kjøkkenet er det utgang til den idylliske hagen, full av velduftende prydplanter, frukttrær og utemøbler. Her kan man ha utendørs selskaper med tryggheten om at man kan trekke inn ved dårlig vær.
Andre etasje rommer utsiktsstuen med vakker utsikt og store vinduer. Her er det plass til 16 personer sittende.
Ved siden av er det et chambre separee med plass til 12 personer.
Møterom Ballsalen har plass til 40 personer til sittende anledning.
Et kjøkken sørger for enkel bevertning og kjøleskap til arrangementer i andre etasje. Det er to toaletter i etasjen med vask og WC.
I andre etasje er det også to kontorlokaler som benyttes av leietakere på hverdager.
Første etasje











Andre etasje





Uteområder






